Nya produkter
HYDRAULISK RVBR AUTOMATISK VENTIL FÖR VÅRCYLINDER MED RESERVOAR OCH NÖDHANDTAG 206613

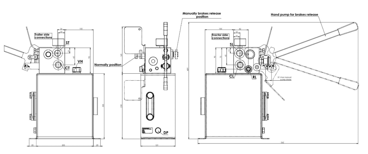
Anslutningar:
CL | 'kontrollinje' = kontrolna linija | Traktorens sida | M22x1.5 DIN 3852-1 X |
SL | 'tilläggslinje' = dodatna linija | M22x1.5 DIN 3852-1 X | |
RL | 'returlinje' = povratna linija | M18x1.5 ISO 6149 | |
CT | 'kontrollinje' = kontrolna linija | Släpvagnens sida | M22x1.5 DIN 3852-1 X |
ST | 'tilläggslinje' = dodatna linija | M22x1.5 DIN 3852-1 X | |
VH | 'ventilationshål / påfyllningsplugg' = odzračevalna odprtina / čep za polnjenje | ||
DP | 'dräneringsplugg' = čep za odtok |
Användningsbegränsningar:
Max. tryck på CL-anslutning | 160 bar |
Max. tryck på SL-anslutning | 50 bar |
Hydraulisk vätska | Hydraulolja DIN 515524 |
Viskositetsklass | 10/380 cSt |
Filtreringsnivå | NAS 1638 KLAS 9 |
Temperatur | -20/+90°C |
Beskrivning:
'HYDRAULISK RVBR AUTOMATISK VENTIL FÖR VÅRCYLINDER MED RESERVOAR OCH NÖDHANDTAG 206613' - huvudfunktioner och användningsanvisningar:
- Under körning har enheten ingen funktion:
- Anslutna linjer CL och CT
- Anslutna linjer SL och ST - Kolvlås för isolering av ST-linjen och manuell pump för manuell frigöring av ST-linjen av cylinder SAHR och nödrörelse även vid avkopplad traktor
- Automatisk återkoppling av kolvlås vid tryckökning på SL-linjen
- Mechaniska säkerhetsindikatorer som visar möjlig frigöring av nödbroms och parkeringsbroms
- Reservoir för manuell upplåsning av cylinder SAHR och för att behålla olja om tryckkopplingen SL av misstag separeras
- Manuell enhet för att avlasta linje CL
![]() | ![]() |
![]() | ![]() |












