Nye produkter
HYDRAULIC VALVE HIAB 8XPC70 + 2X JOYSTICK - ELECTRIC CONTROL 12V

Generel beskrivelse:
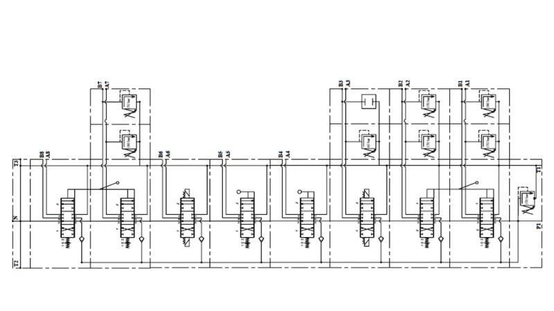
Den manuelle eller mekaniske hydrauliske ventil РC70 er designet til distribution og kontrol af arbejdstrømmen mellem hydraulikpumpen og hydraulikcylindrene.
Den hydrauliske ventil bruges til skovbrugstrailere – (HIAB).
Samlet i en blok af 8 segmenter.
Drift:
Alle hydrauliske ventiler er udstyret med en sikkerhedsventil. I neutral position (spaken i midten) cirkulerer olien gennem ventilen. Når spaken flyttes til den ene eller den anden side, får den hydrauliske ventil cylinderen til at bevæge sig eller den hydrauliske motor til at rotere i den ene eller den anden retning. Ved at slippe spaken vender den automatisk tilbage til neutral position, den hydrauliske motor eller cylinder stopper i den nuværende position, og olien cirkulerer igen gennem ventilen. Det er muligt at bruge et såkaldt 'lukket center' element, som ændrer ventilen, så olien ikke cirkulerer gennem ventilen i neutral position, eller en sådan ventil ikke længere er flydende. Ved brug eller tilslutning af andre ventiler er det nødvendigt at bruge et 'carry over' element, som tillader olieforsyning til andre ventiler.
For ventiler med spindler til flydende funktion tillader det cylinderen fri strøm af olie, hvilket betyder, at cylinderen bevæger sig frit (eller sneploven tilpasser sig terrænet).
Ventiler med spindler til enkeltvirkende cylindre er beregnet til enkeltvirkende cylindre.
Konstruktion:
РC70 er en monoblock distributionsventil. Den er lavet af støbejern EN-GJL300. Spindlerne er lavet af kulstofstål og er hård krombelagte.
Forbindelser:
Spindlen er skruet med to M10 skruer.











